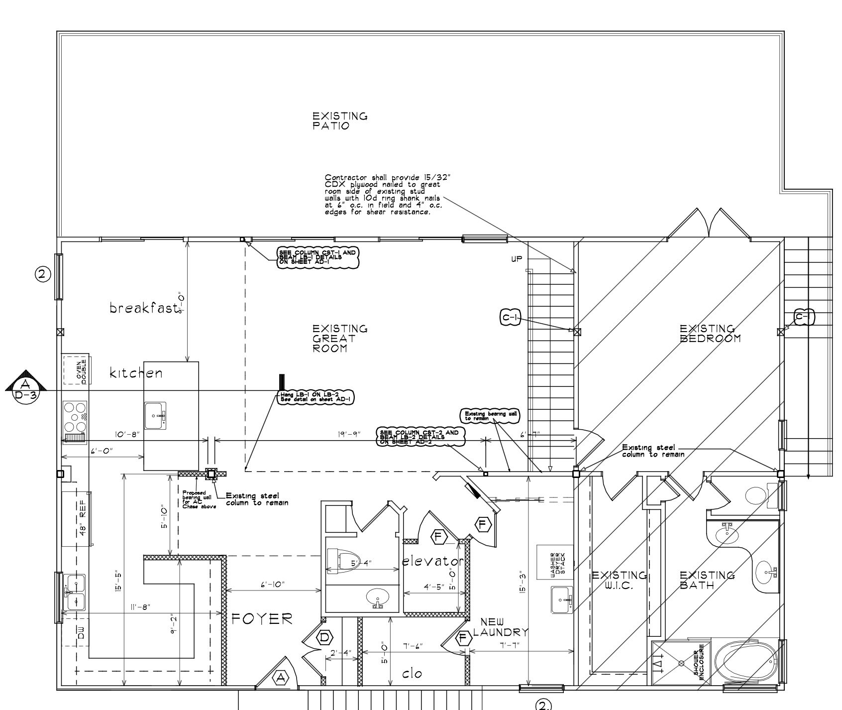
convert this floor plan into a architectural isometric 3d view of a full house show the space from an elevated angle with furniture walls and details visible keep empty space no furniture or decor use the same furniture as shows on the plan do not change the orientation of the floorplan