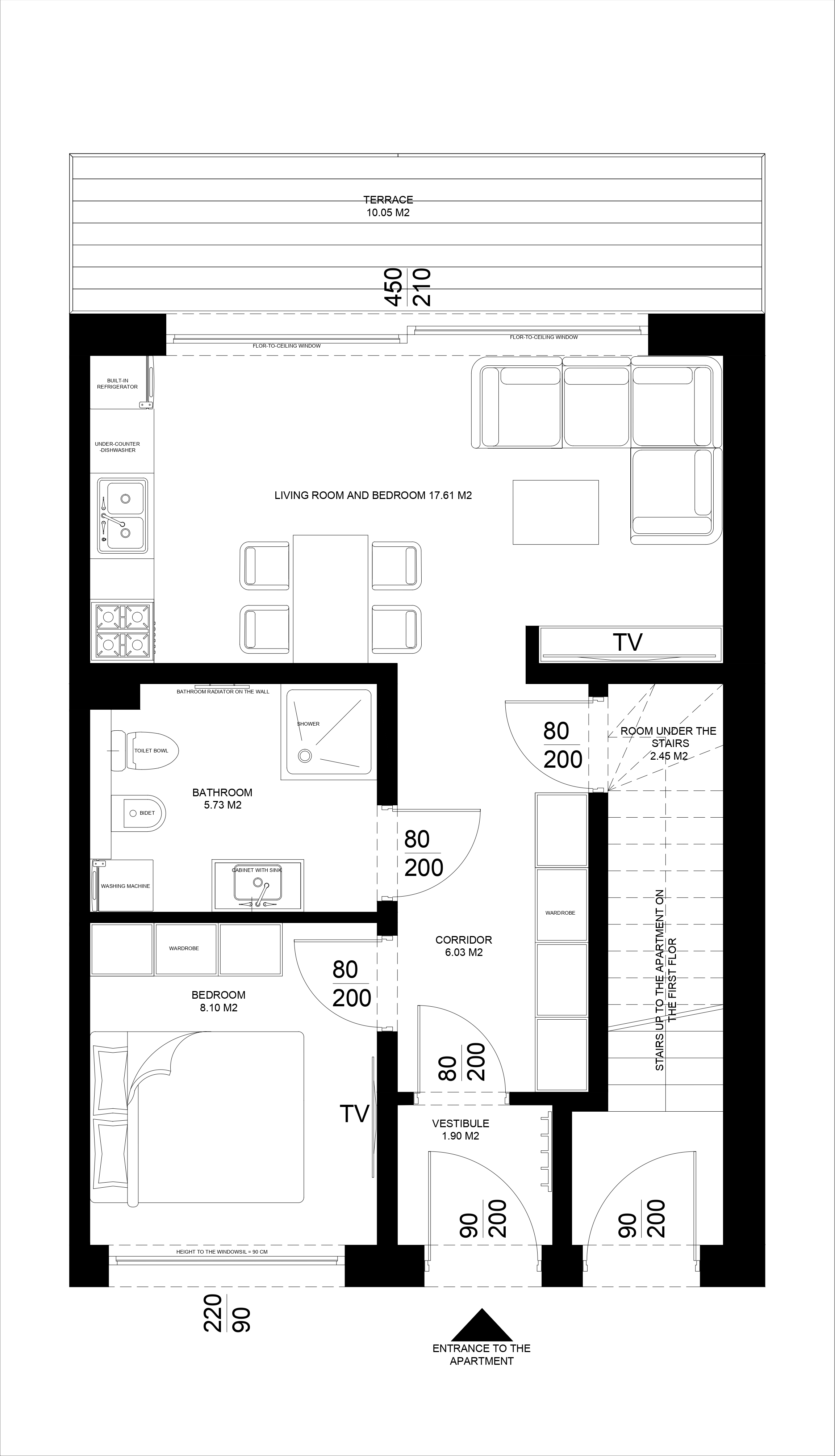
convert this floor plan into a realistic isometric 3d view of a full house show the space from an elevated angle with furniture walls and details visible loft style apartment do not make divisions on the windows do not show inscriptions view at a slight angle do not change the layout of the walls do not put a railing on the terrace view at an angle use the same furniture as shows on the plan do not change the orientation of the floorplan