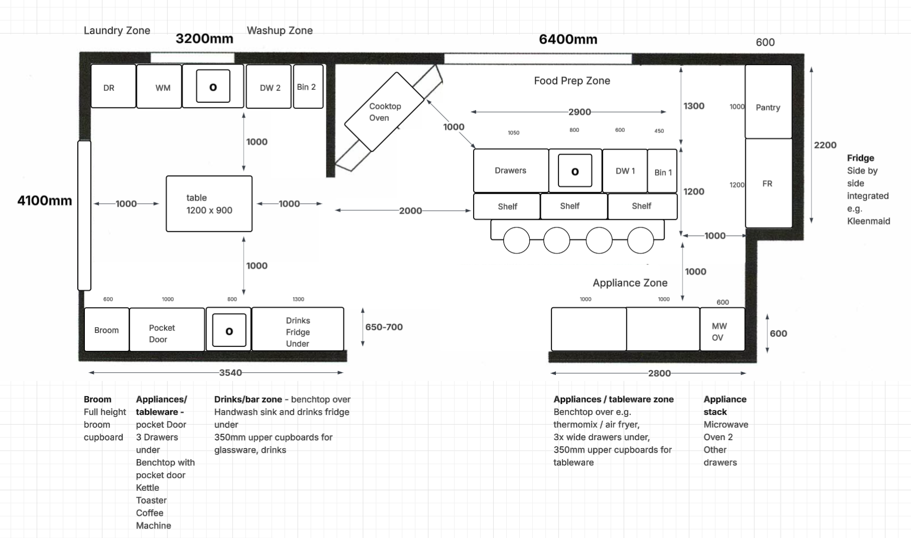
convert this floor plan into a realistic isometric 3d view of a full house show the space from an elevated angle with furniture walls and details visible create render pay close attention to the words and all dark lines as walls use the same furniture as shows on the plan do not change the orientation of the floorplan