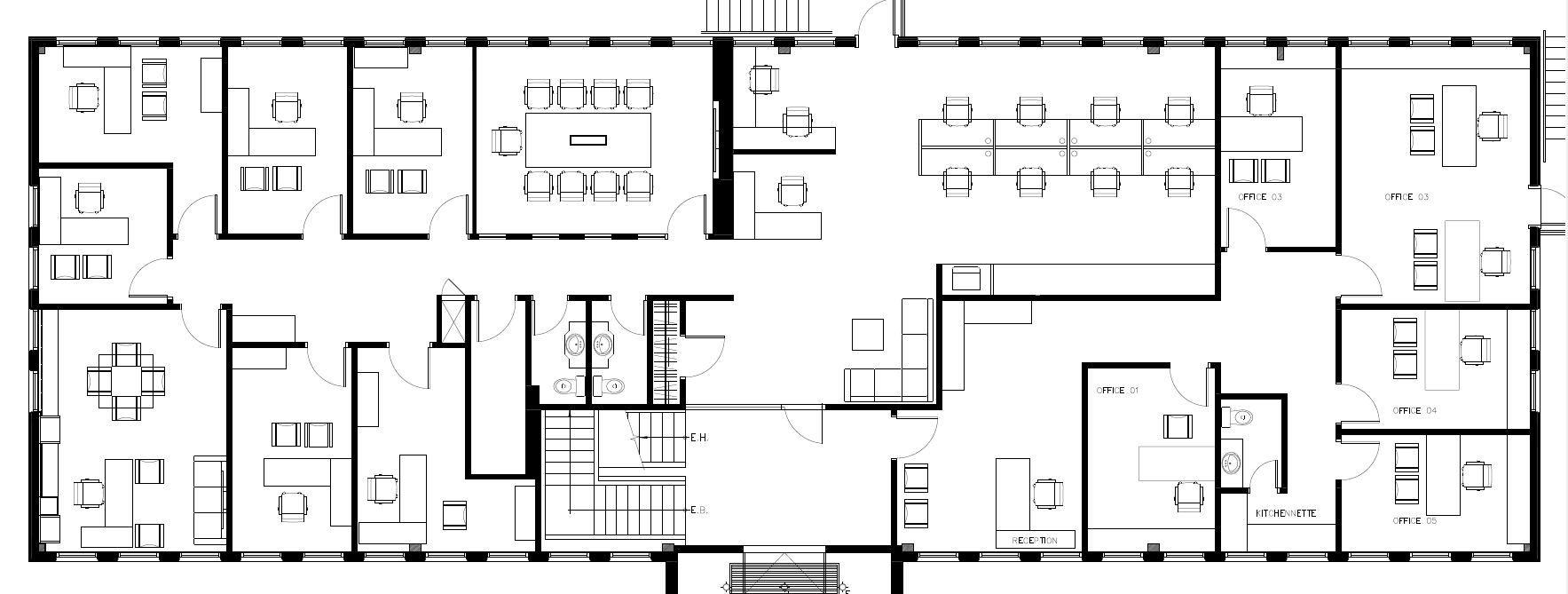
this a 2d plan layout render a modern office workspace with a warm inviting atmosphere utilize natural wood tones for ceiling beams and furniture complemented by soft beige and cream wall colors add sleek matte black office chairs and desks to provide contrast include computer screens with subtle glowing designs use dim ambient lighting with soft shadows and incorporate deep navy blue accents for a sophisticated touch the overall atmosphere should be calm professional and elegant with a touch of contemporary style