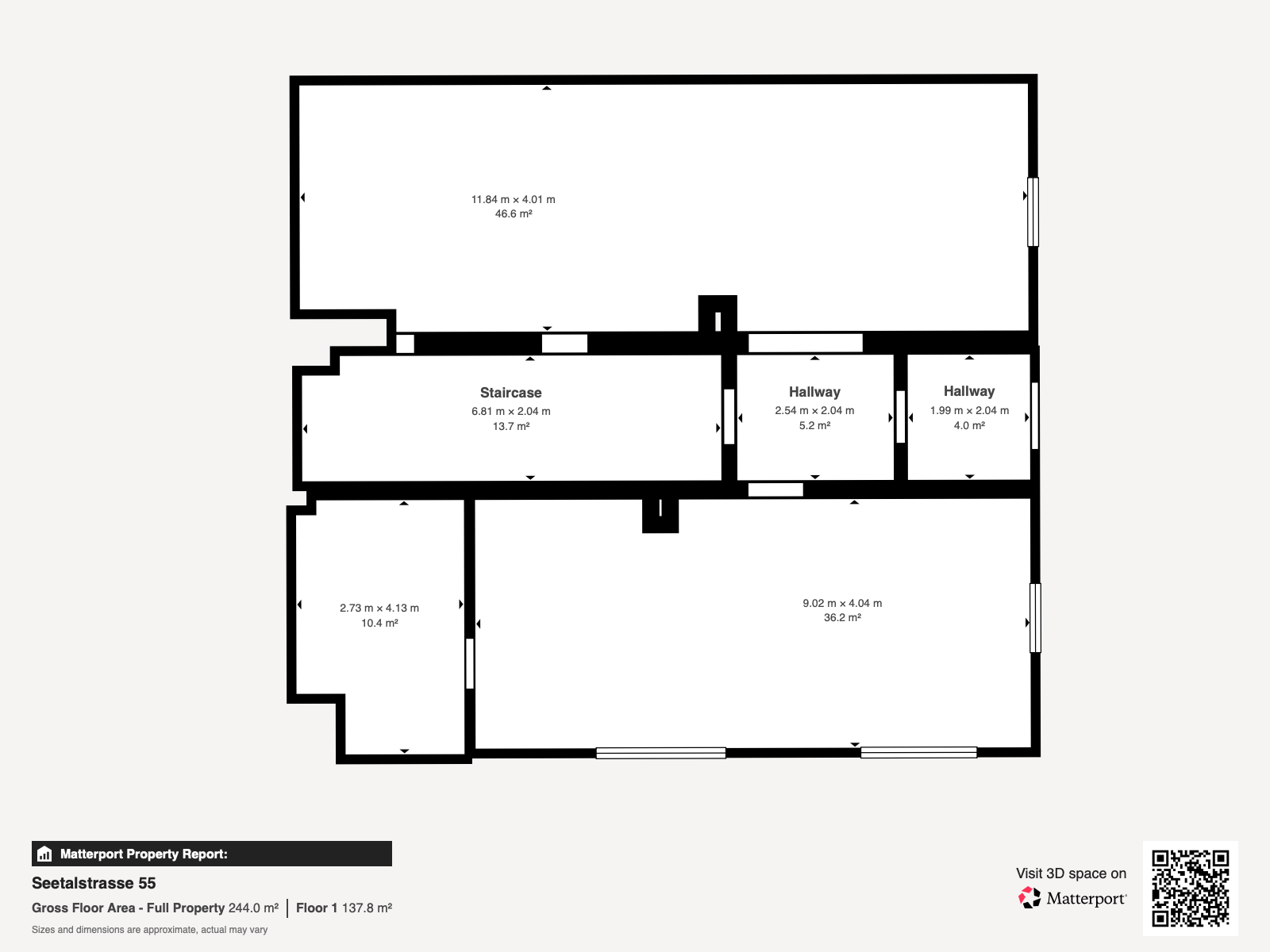
convert this matterport floorplan into a clean professional architectural floorplan drawing preserve the exact layout room sizes and wall positions from the original image do not change geometry or proportions replace the scan style plan with crisp vector linework thick black exterior walls thin grey interior walls white background clear door swing symbols and window openings straighten distorted scan walls and remove matterport artifacts while maintaining the original plan footprint use a modern real estate floorplan style with clean typography and centered room labels output a high resolution top down 2d architectural floorplan negative prompt no 3d no perspective no furniture no redesign no color textures no shadows no artistic rendering keep exact layout