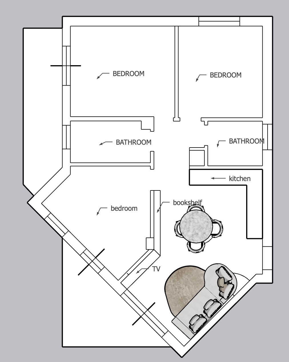
convert this floor plan into a modern isometric 3d view of a full house show the space from an elevated angle with furniture walls and details visible wooden floors modern furniture warm lights organic shapes soft colors and textiles plants little details in black use the same furniture as shows on the plan do not change the orientation of the floorplan