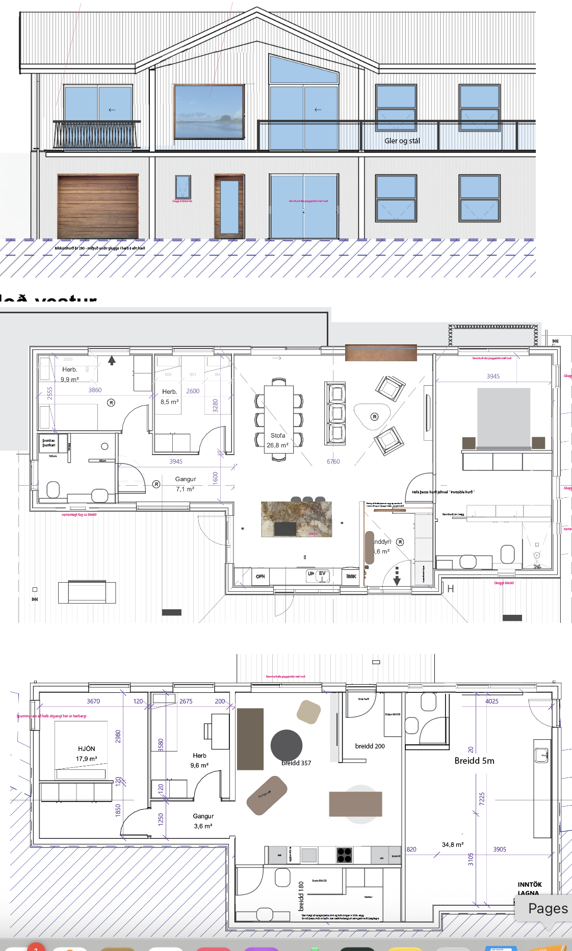
can you change the material on the upperfloor to copper brown siding and the lower floor to a grey sand color sement look have it a darker brown and hafe the posts and roof in the same material use cooler brown this is to red and hafe all posts window frame and roof edge the same roof and walls on upper floor on the same dark brown color the upper floor in ncs s7005 y20r with a metal look and the lower floor in ncs s 40005 y20r in a mat sement look this is not right 1st floor in s 40005 y20r in a mat sement look the upper floor walls roof and all the trimings in ncs s 7005 y20r kepp the floorplans below original