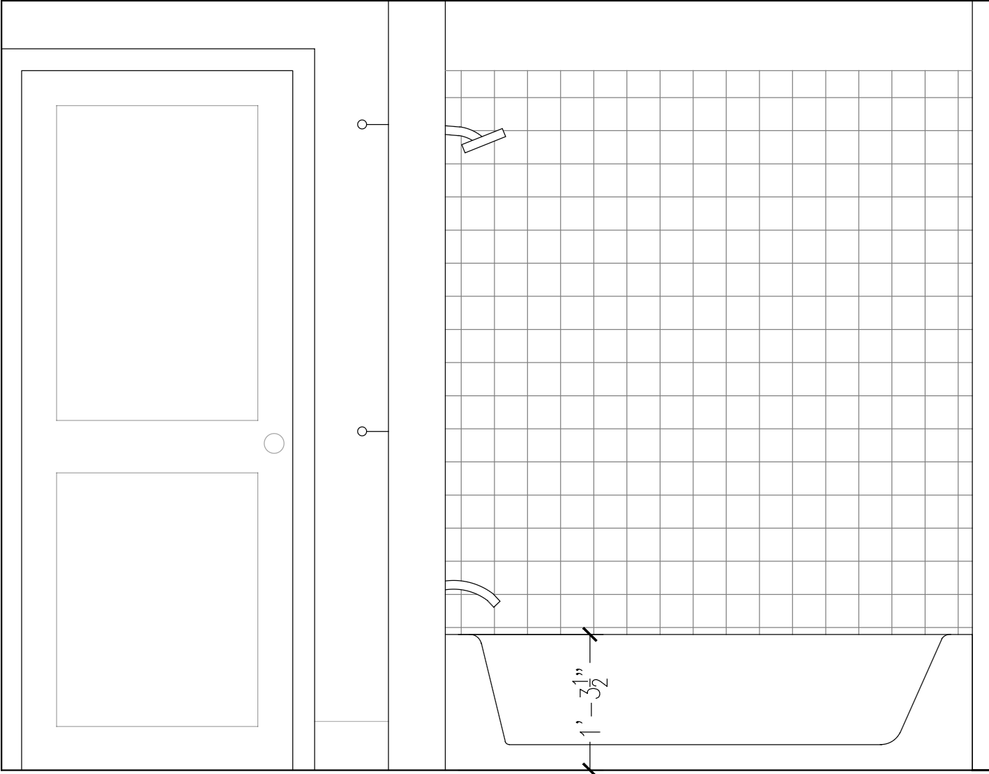
render this elevation tile the 3 shower walls and tile the floor is 4x4 in creme walls should be a slightly lighter darker creme door is high gloss griege with antique brass doorknob the bath tub is simple white buillt in the shower head is a gooseneck in nickel put a small conical glass light fixture centered in the shower put a shoer curtain pushed to the right handing from the very top of the shower opening the shower curtain fabric should be small brown linen striped