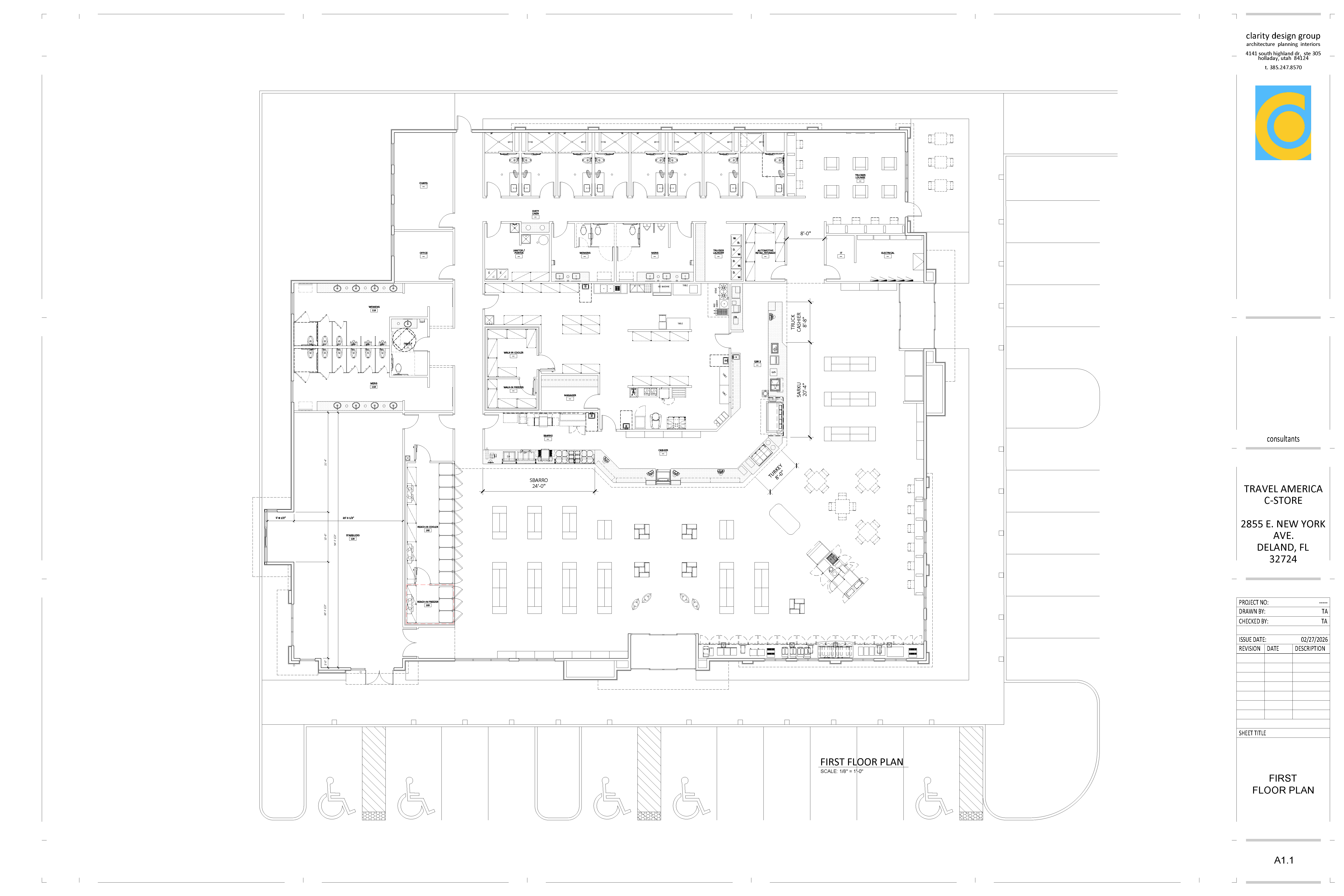
this is a travel center convenience store the big 1 500 sf rectangle on the left is starbucks the middle strip is not a room it s a cashier counter that wraps around there are elevator doors and the 9 back rectangles are showers for truck drivers the rectangle in the upper left hand corner is a chapel the rectangle below it is a manager s office the space in the middle behind the cashier wrap is a kitchen