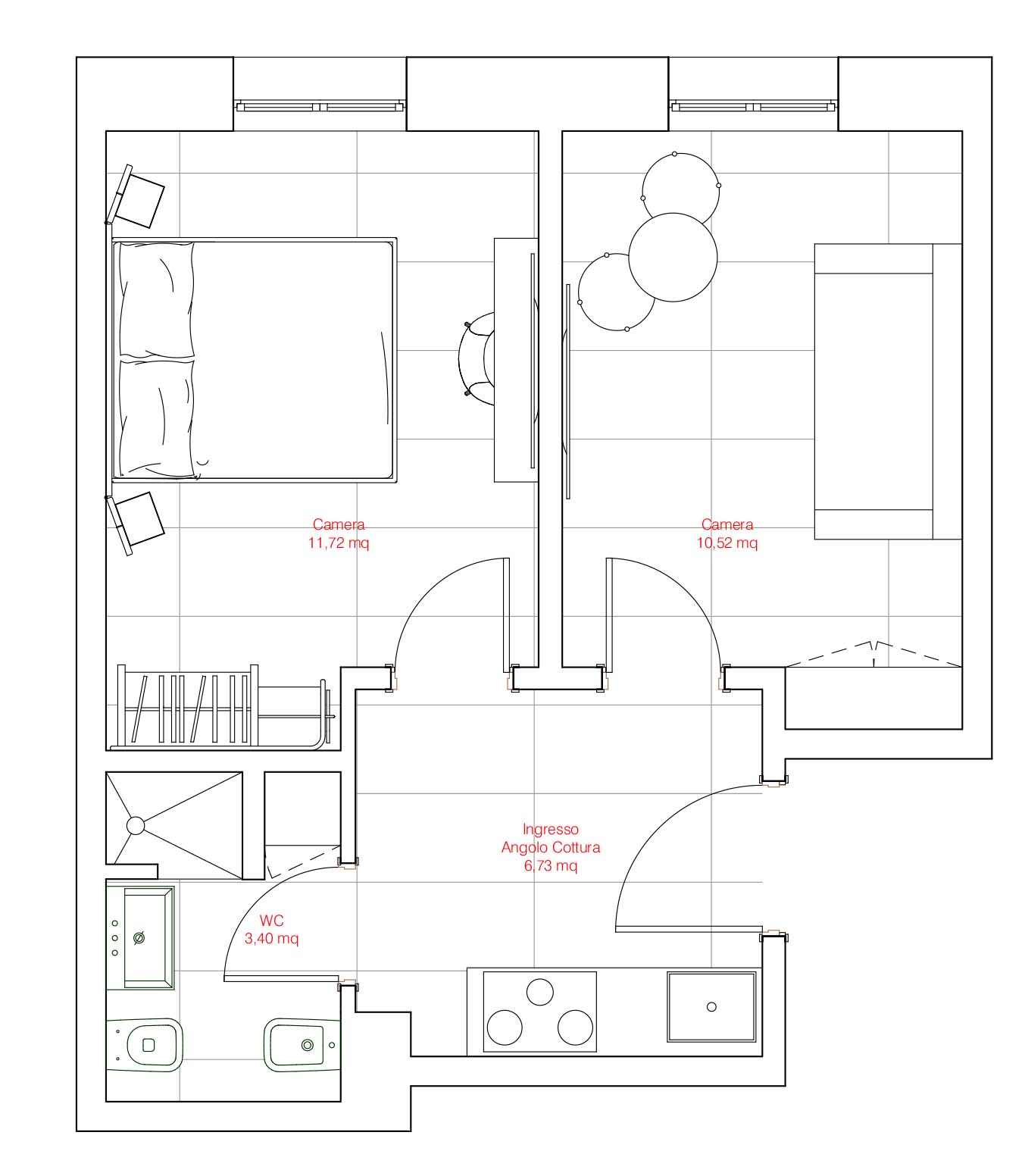
convert this floor plan into a realistic isometric 3d view of a full house show the space from an elevated angle with furniture walls and details visible crea un ambiente caldo ed elegante con luce naturale pavimento in gres color sabbia pareti color creda effetto cerato satinato inserisci 2 persone nella scena use the same furniture as shows on the plan do not change the orientation of the floorplan