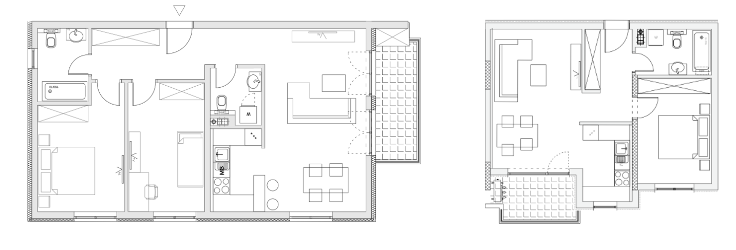
interior from the top a beautifully rendered modern apartment floor plan plush with premium details and vibrant colors the living room features a cozy sectional sofa in soft grey complemented by a white coffee table the walls are painted in a soothing light taupe enhancing the warm inviting atmosphere the kitchen is sleek with white cabinets and polished chrome fixtures while the dining area is set with a rustic wooden table and elegant white chairs the bathroom is modern adorned in calming blue tinted tiles with a luxurious bathtub and a spacious vanity the bedroom is serene with a plush king sized bed dressed in crisp white linens and a soft light grey area rug large windows allow for ample natural light producing a bright and airy feel the balcony exhibits chic potted greenery infused with a sense of peaceful relaxation the atmosphere is sophisticated and clean with a harmonious blend of cool and neutral tones throughout architecture