archsynth
Sign Up
Open main menu
Image to 3d model
Compare
Testimonials
Contact us
Log in
→
Signup
Archsynth generation
Input image
Copy Prompt
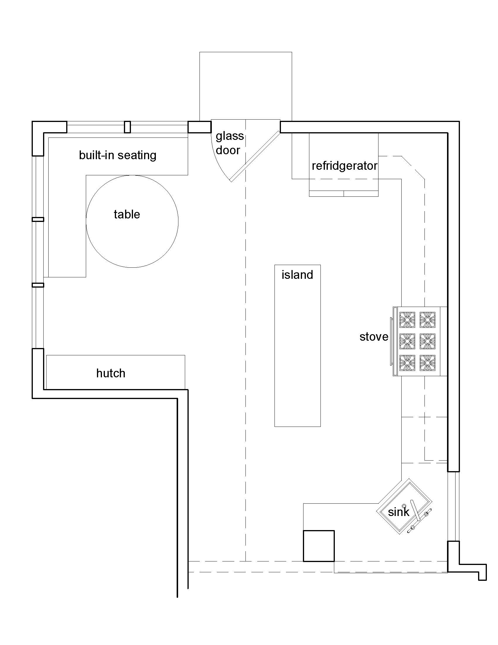
add windows ot the seating area and vault the ceiling with exposed beams remove the sink in the island remove the sink over the stove
Virtual Staging
strength 75
seed 10
Start Creating Renders Now
Related Posts
Start Creating Renders Now
View more