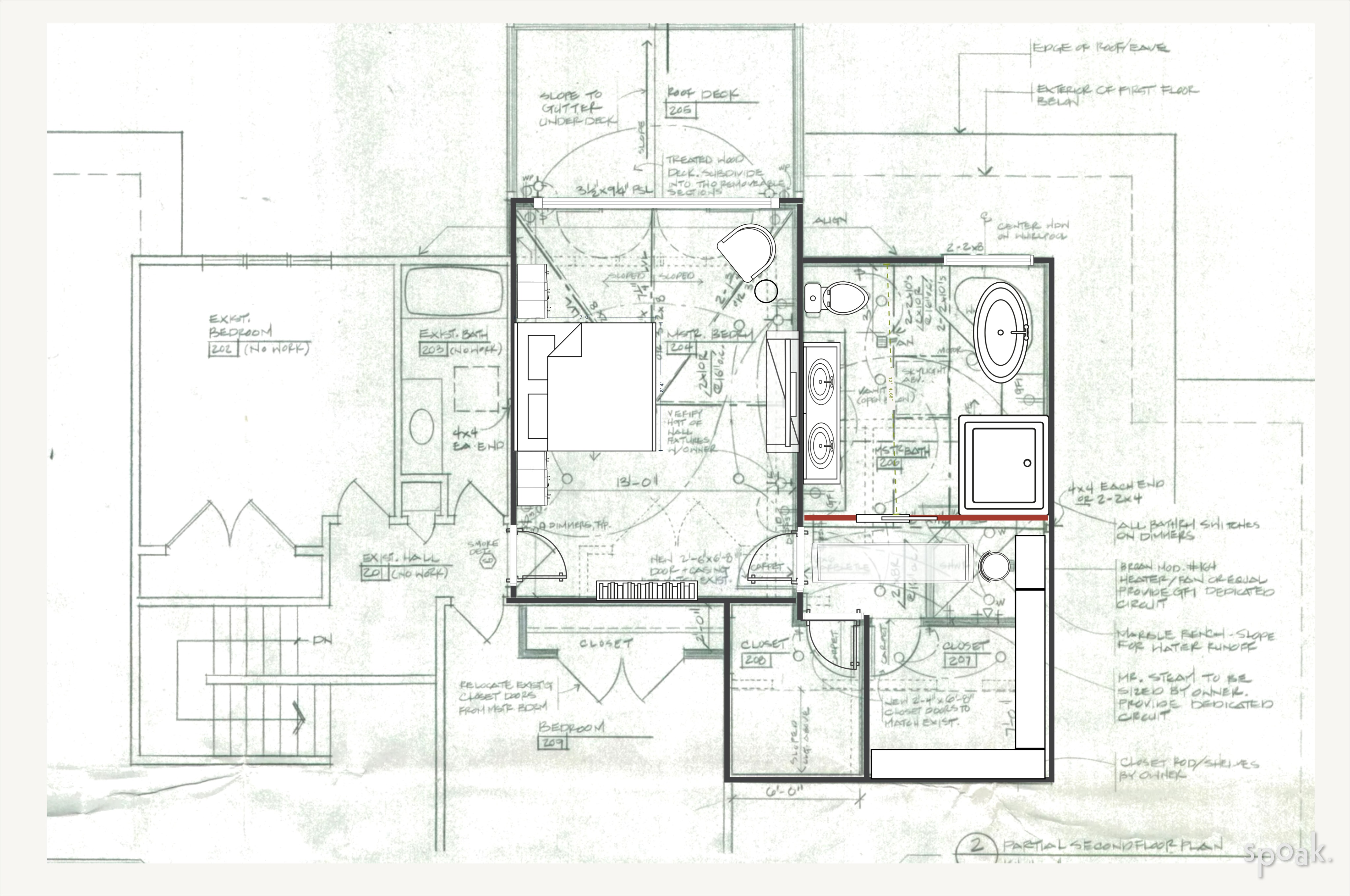
refine floorplan