archsynth
Sign Up
Open main menu
Image to 3d model
Compare
Testimonials
Contact us
Log in
→
Signup
Archsynth generation
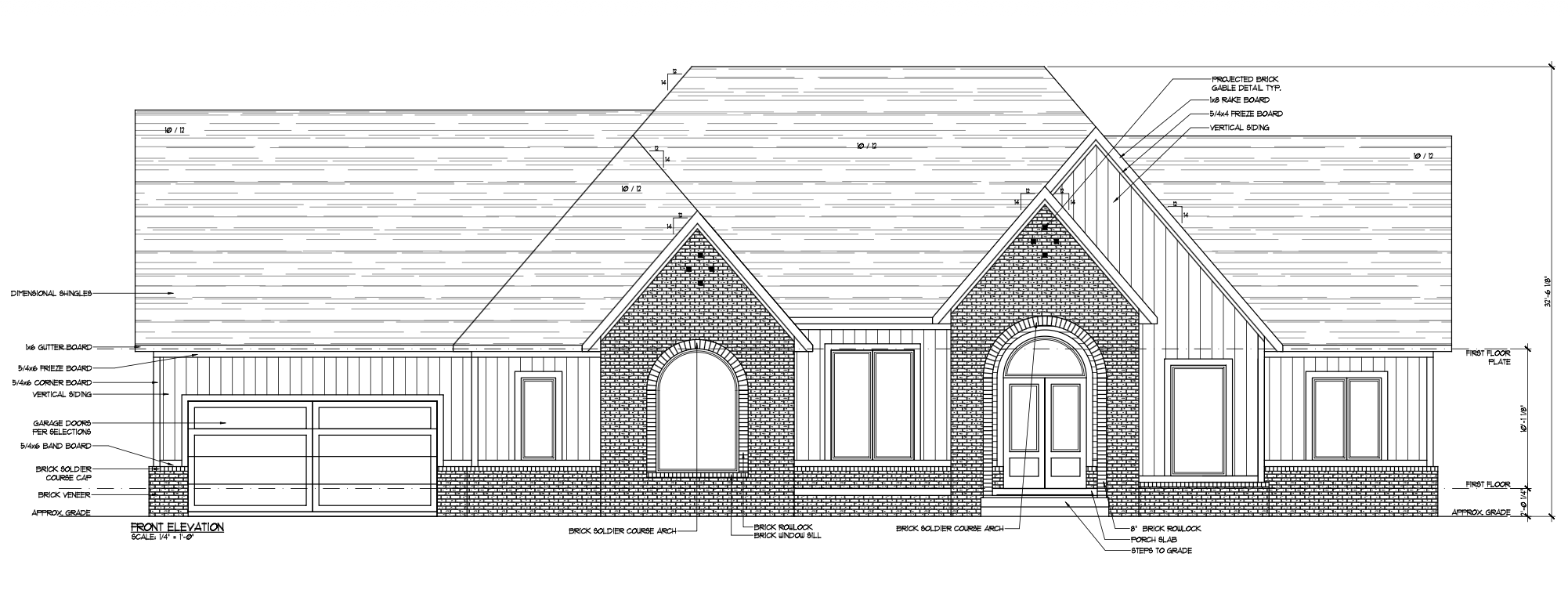
Input image
Copy Prompt
make the roof charcoal brick a cream color and siding a wood color with full landscaping in a neighborhood setting
Freestyle
strength 75
seed 4226
Start Creating Renders Now
Related Posts
Start Creating Renders Now
View more