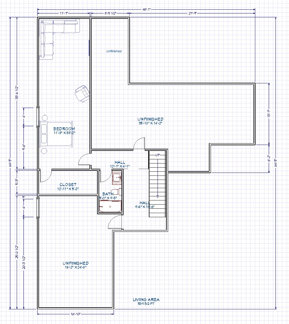
convert this floor plan into a realistic isometric 3d view of a full house show the space from an elevated angle with furniture walls and details visible render this basement bedroom and living room are attached do carpet in those areas the closet and all hallways in the two large unfinished spaces keep it concrete and studs the space immediately to the right of the living area is unfinished and is apart of the original unfinished space the only window is above the bed use the same furniture as shows on the plan do not change the orientation of the floorplan