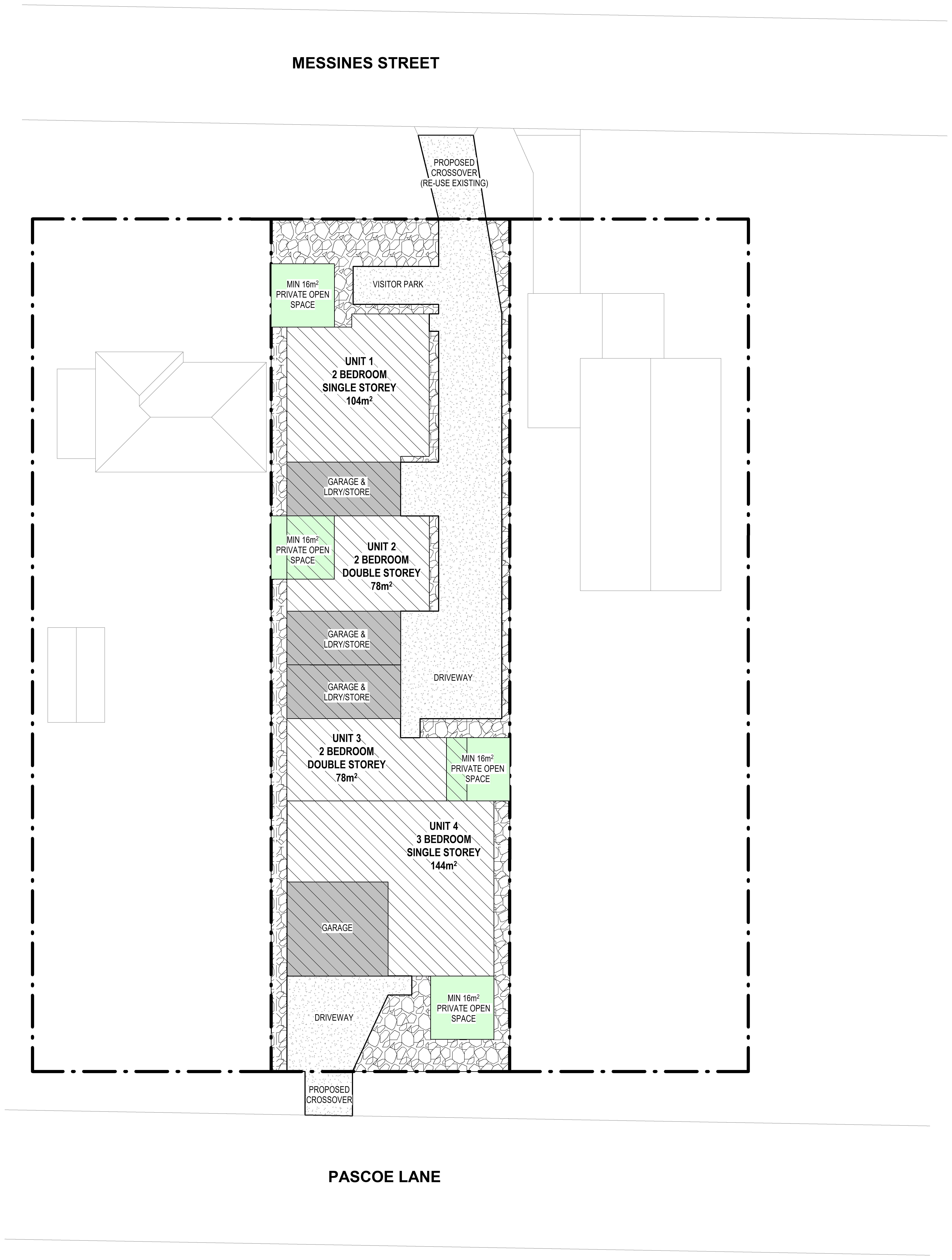
professional architectural site plan render strict top down 2d view maintain exact site boundaries dimensions building footprints driveway alignment and crossover locations unchanged replace pebble hatch areas only with high quality landscaping including green lawn defined garden beds low maintenance shrubs and a small number of well spaced feature trees trees should be appropriately scaled for a residential development small to medium canopy not oversized add landscaping specifically along both side boundaries as soft planting buffers around private open space areas to enhance usability near visitor parking to soften hard surfaces along driveway edges without obstructing vehicle access keep driveway and vehicle circulation areas clear and fully readable do not place trees or plants within drive paths or on the green hatch zones do not place trees or plants where there is no hatch use realistic but subtle materials light grey concrete for driveway muted green lawn natural garden bed tones and soft organic planting shapes apply clean professional developer style graphics with no shadows under trees and slight texture variation ensure the drawing remains crisp legible and suitable for client presentation do not change building shapes sizes or positions do not move or alter driveways crossovers or parking layout do not add extra structures no perspective or 3d angles no people cars or furniture do not blur or modify text do not overscale trees or overcrowd planting avoid dense forest like landscaping