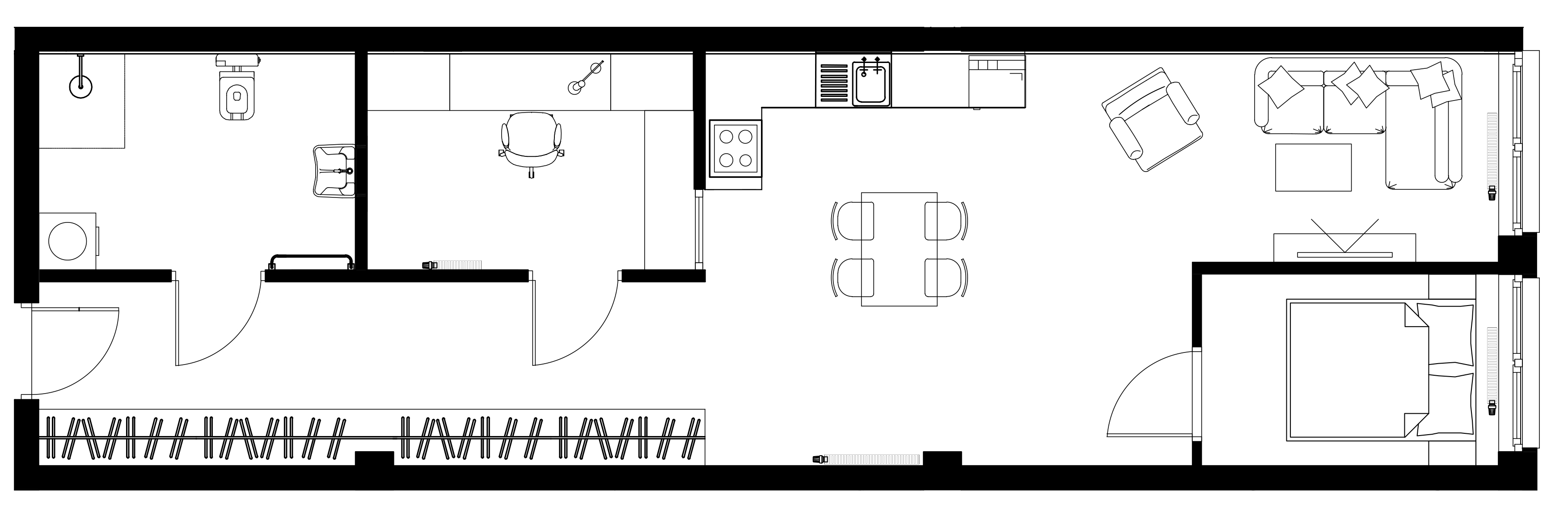
convert this floor plan into a realistic isometric 3d view of a full house show the space from an elevated angle with furniture walls and details visible create a stylish isometric apartment floor plan using only a palette of beige tones and natural wood do not use any other colors all walls should be white place a soft rug under the bed in the bedroom and another rug under the sofa in the living area the design should feel bright elegant cozy and visually appealing with a clean high end presentation suitable for a real estate or interior design showcase do not change the layout in any way recreate it exactly as shown in the floor plan with the same room arrangement proportions walls openings and placement of all elements use the same furniture as shows on the plan do not change the orientation of the floorplan