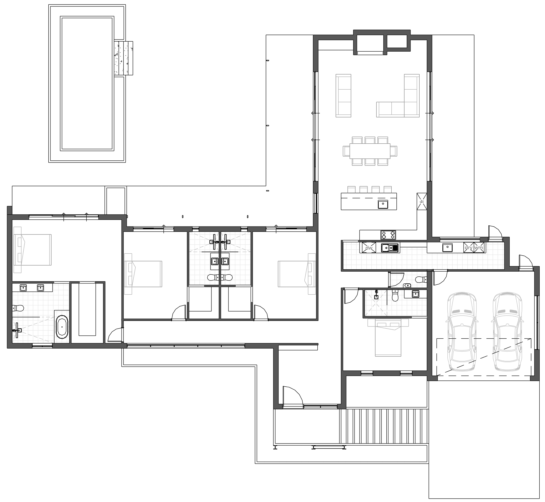
render to architectural floorplan