archsynth
Sign Up
Open main menu
Image to 3d model
Compare
Testimonials
Contact us
Log in
→
Signup
Archsynth generation
Input image
Copy Prompt
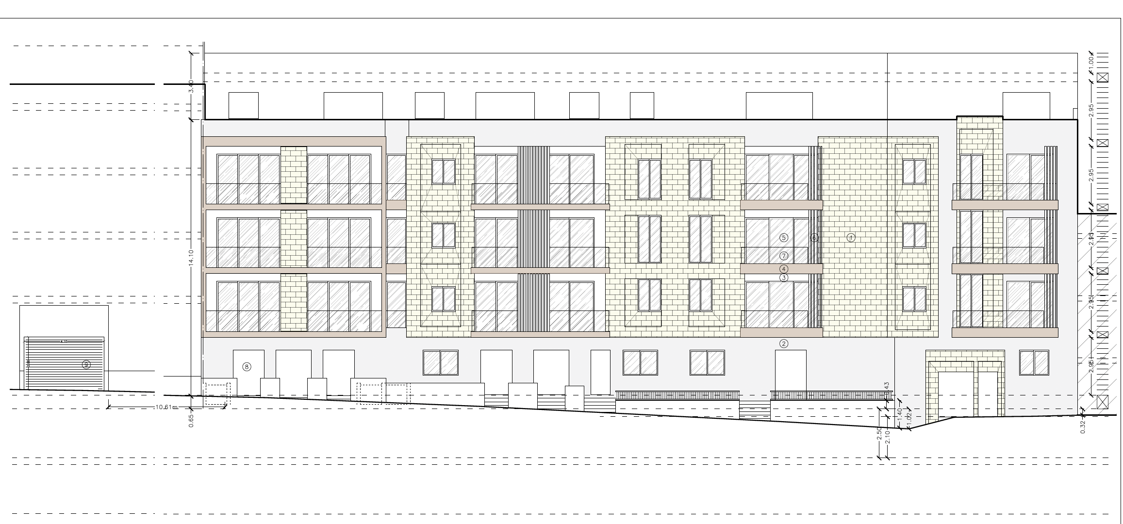
exterior shot this is an elevation in globigerina limestone and balcony profiles painted in white architecture
by Architect
strength 75
seed 5401
Start Creating Renders Now
Related Posts
Start Creating Renders Now
View more