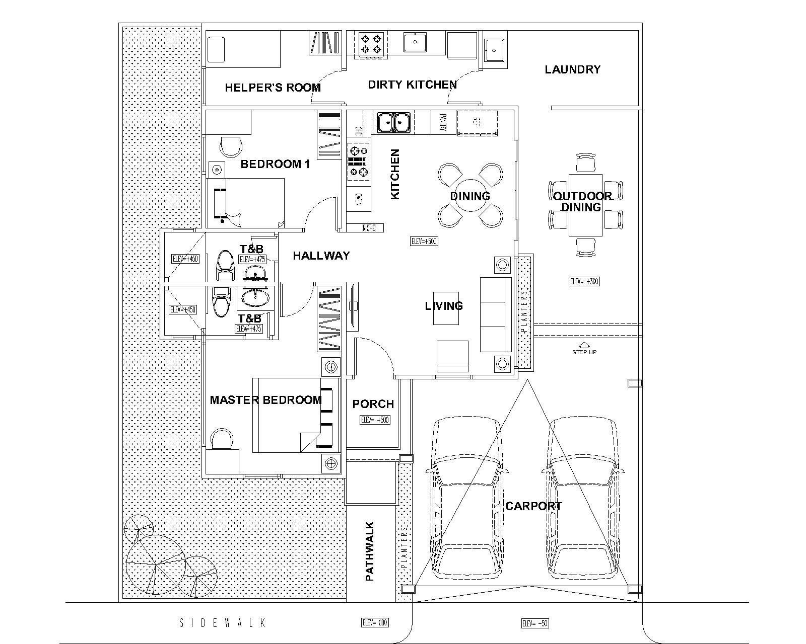
convert this architectural floor plan into a realistic 3d top view render use uniform 60x60 cm floor tiles in light neutral tones for all interior and exterior areas add plants inside all planter boxes and create soft landscaping with grass and shrubs surrounding the house show the cabinets with visible folded clothes inside the master bedroom and bedroom 1 include a bed in the helper s room add stair steps in the porch area and also stair steps leading up to the outdoor dining area reflecting the change in elevation keep the overall look modern tropical with white walls warm wooden accents and natural daylight illumination render in high photorealistic quality with soft shadows and realistic materials