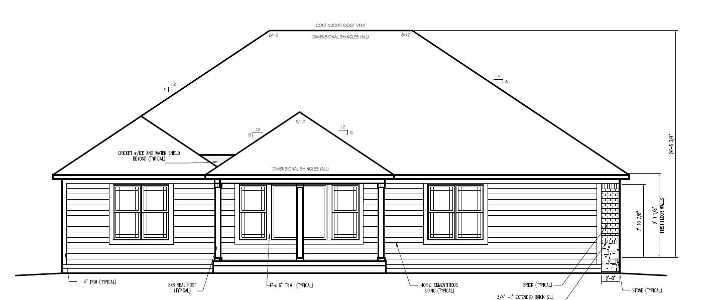
make the shingles windows and gutters black soffit colored felted wool make siding urbane bronze keep hip roofline remove corbels make posts felted wool color remove brick from wainscott but not the side