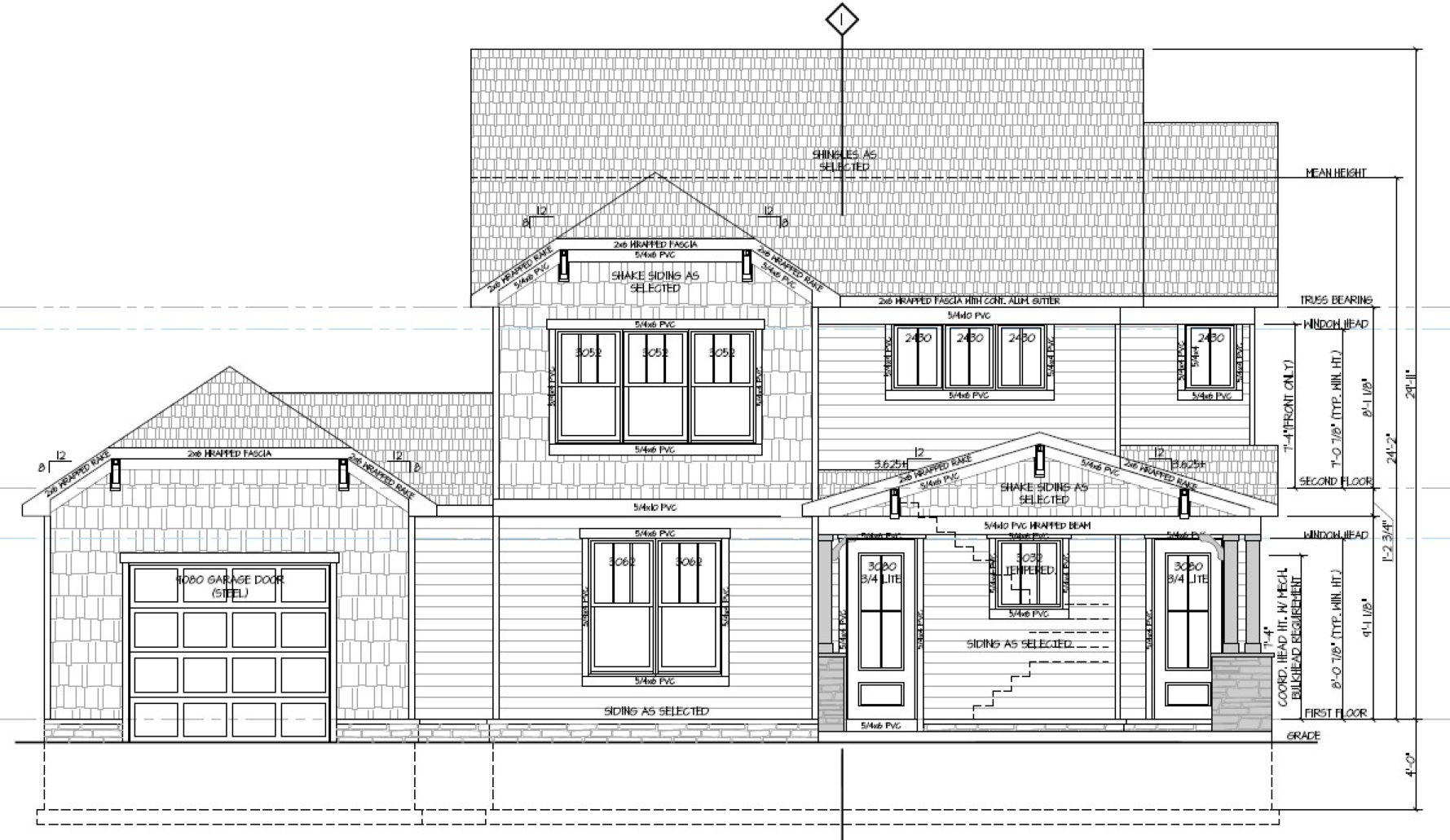
create a lifelike photorealistic rendering based on the provided architectural blueprint do not alter or modify any structural elements exterior finishes siding combination of shake and clapboard in light beige garage door ultra grain medium brown finish gutters trim windows and window surrounds white ensure natural lighting realistic textures and accurate color representation to closely match a real world photograph of the finished home