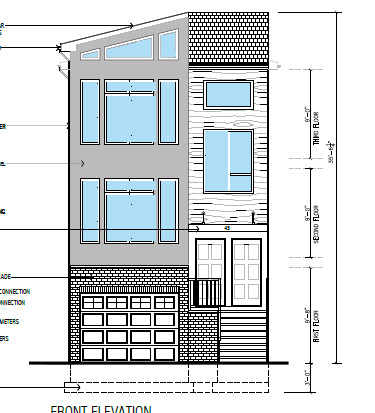
generate realistic rendering with all elements of the elevation including two doors