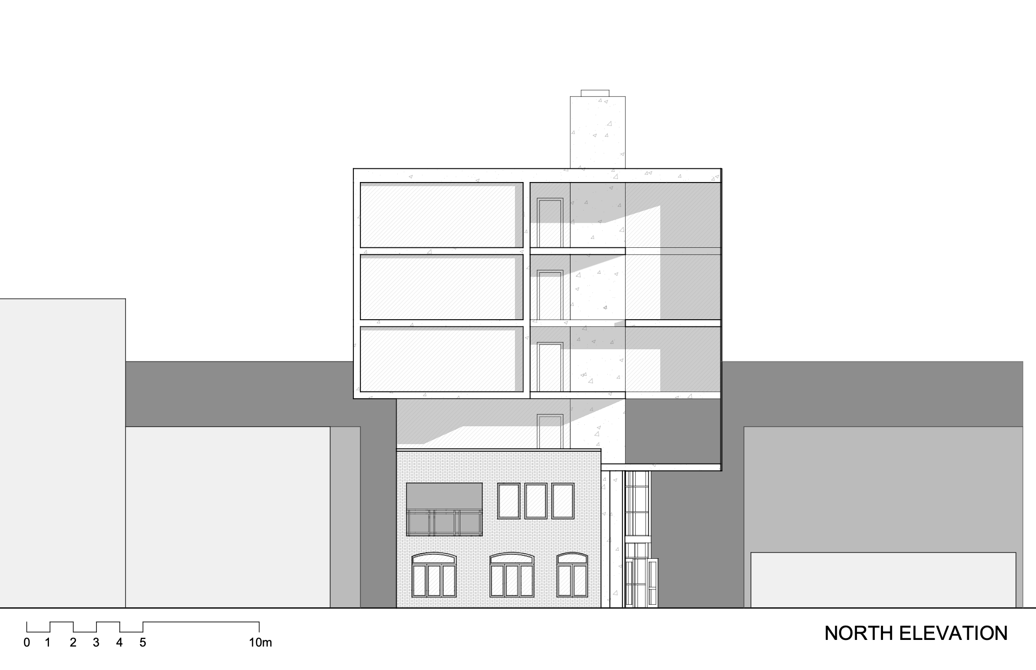
revised render prompt all floors must appear render this architectural elevation into a clean realistic yet conceptual visualization preserve the exact number of floors shown in the drawing including the full four storey glazed upper volume and the brick heritage base below ensure that no floors are removed or merged maintain the full structural grid and the cantilever step back exactly as drawn the lower portion should be red brick with correct texture and window framing the upper massing should appear as stacked fully glazed volumes with a light cement concrete frame around every floor and joint emphasize the separation between each level with precise continuous horizontal bands use soft daylight and gentle depth shading for realism surrounding buildings should remain as muted outlines to reinforce urban density while keeping focus on the central building maintain proportions exactly as shown in the original elevation