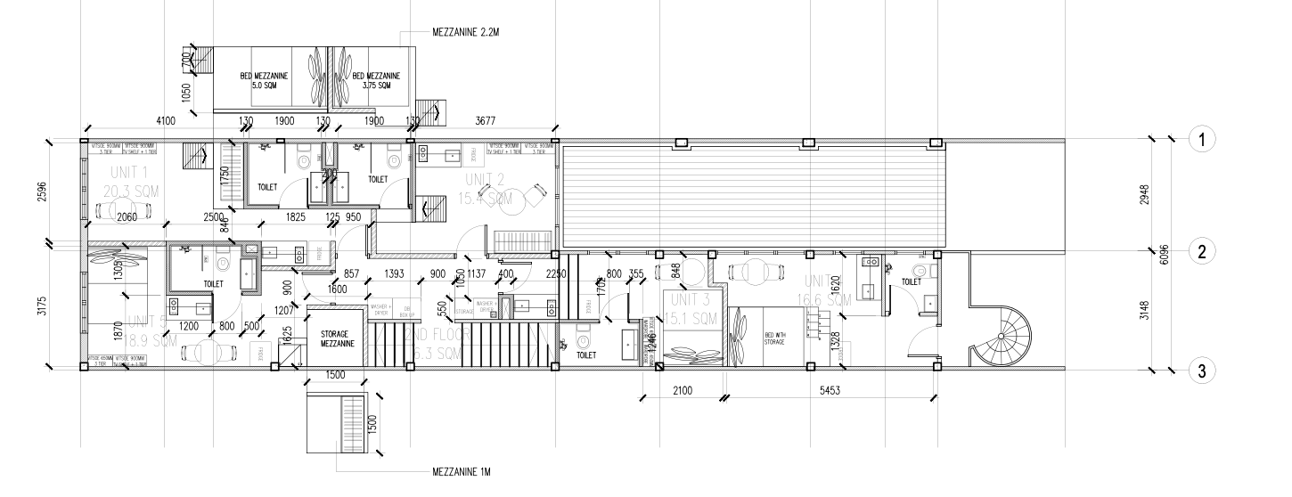
can you create a 3d floor plan the common area will be using a black mosaic all the rooms will be using honey coloured timber plank tiles the part where there are many horizontal lines is a flat metal roofing the tiles should be a oak timber plank tiled horizontally