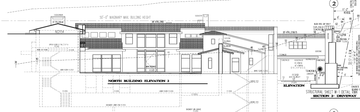
the picture i sent below for reference is the color scheme i want please make house look like a realistic photothe tall glass area in the front is the front door please make a nice entry way or path or front lawn area please keep the dimensions and sizing the exact same