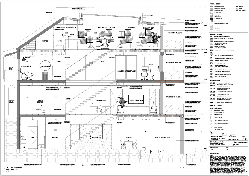
sectional cut through a heritage terrace house in paddington showing four levels basement ground floor first floor and attic detailed architectural cross section with furniture people plants and natural light contemporary renovation inside a restored brick fa ade open vertical circulation with cantilevered tasmanian oak stair daylight cascading from skylight through stair void soft shadows and warm interior tones