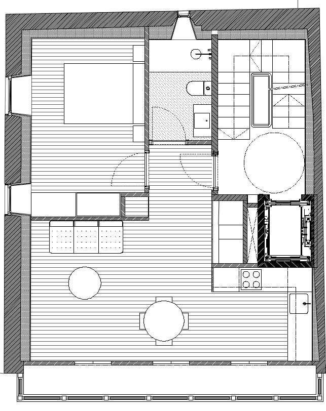
convert this floor plan into a realistic isometric 3d view of a full house show the space from an elevated angle with furniture walls and details visible vivienda con galer a tradicional de madera suelo de madera y escaleras de granito el edificio tiene ascensor y muros exteriores de mamposter a de piedra tiene un ba o con ducha lavabo y wc cocina con fregadero y una habitaci n con una cama en el sal n hay un sof use the same furniture as shows on the plan do not change the orientation of the floorplan