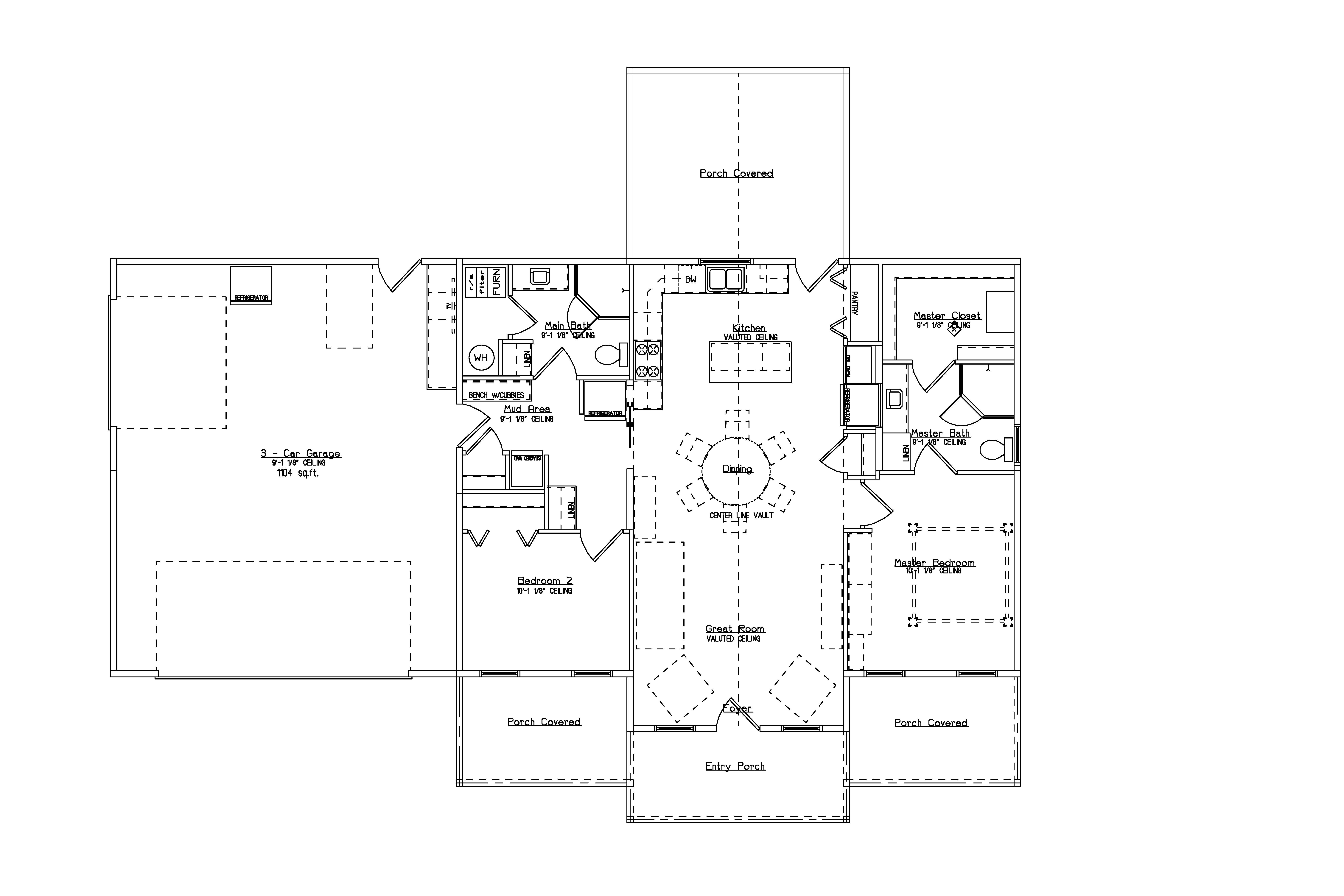
convert this floor plan into a realistic isometric 3d view of a full house show the space from an elevated angle with furniture walls and details visible do not add any rooms or items that are not shown on image both bathrooms have a walk in neo angle shower linen cabinet single sink vanity and a toilet do not add windows garage has a single double wide overhead garage door in the front and a single wide overhead garage door on the on the left wall in garage on right wall is a and a 9 base cabinet with a large tv and sink on right refrigerator is on rear wall kitchen sink on rear wall large window above it door on the right of window going to back porch 4 bar stools at the island dishwasher is to the left of the sink double oven on right wall with refrigerator to the right of the double oven 5 burner cooktop on the left wall with a hood above add upper cabinets in kitchen master closet no window add custom closet system with shelves drawers and closet pole use the same furniture as shows on the plan do not change the orientation of the floorplan