archsynth
Sign Up
Open main menu
Image to 3d model
Compare
Testimonials
Contact us
Log in
→
Signup
Archsynth generation
Input image
Copy Prompt
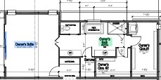
you incorrectly reconfigured this layout please see the accureate rooms in my floorplan and render the exact space as is above
3rd Party Models
strength 75
seed 10
Start Creating Renders Now
Related Posts
Start Creating Renders Now
View more