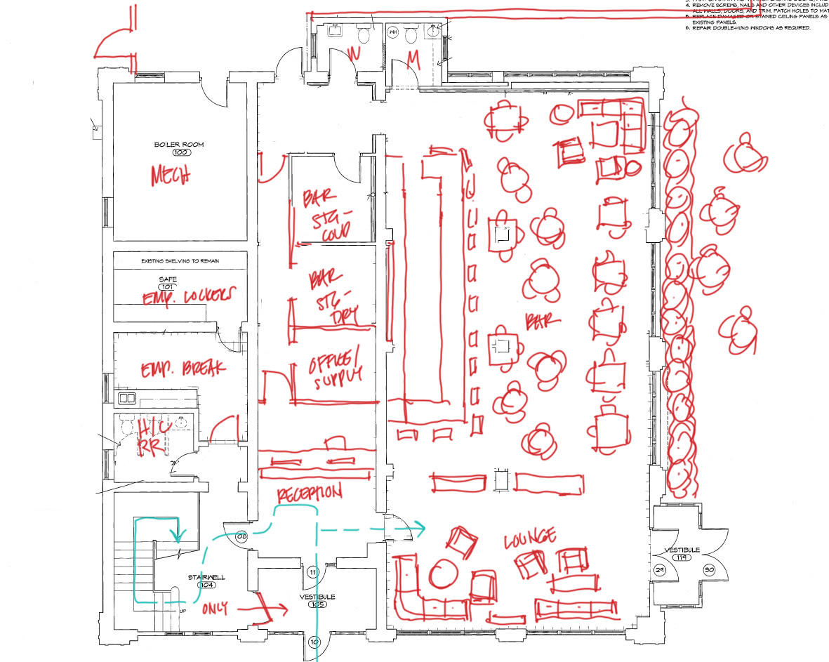
convert this floor plan into a architectural isometric 3d view of a living room show the space from an elevated angle with furniture walls and details visible create an isometric axonometric interior render dollhouse cutaway from the provided hand drafted floor plan of a historic commercial building boeckling building sandusky ohio the output should be a single isometric view showing the interior layout and furniture in 3d while remaining faithful to the plan critical geometry rules must follow do not change the floor plan geometry walls doors openings and room proportions must match the drawing exactly use the plan linework as the source of truth keep circulation and room boundaries unchanged the right side of the plan is the focus render it as a hotel bar and lounge the left side can be simplified and muted if needed isometric presentation style 3d cutaway architectural axon look with the roof removed and walls cut cleanly at a consistent height dollhouse clean professional archviz style readable not overly busy accurate furniture scale and spacing commercial hospitality proportions not residential program for the right side hotel bar lounge a main bar long bar with working side behind it bar stools backbar shelving and bottle display booths banquettes along the perimeter walls and several intimate table groupings 2 4 tops a defined lounge zone with sofas club chairs small cocktail tables and side tables keep egress paths clear and realistic for a commercial space 1920s 1930s prohibition speakeasy vibe key aesthetic dark rich wood floors walnut mahogany warm wood paneling wainscot where appropriate brass accents bar foot rail light fixtures hardware deep green accents and iconic green glass banker s lamps used throughout on tables and or bar warm amber lighting low and intimate mood subtle art deco geometry patterns rugs screens or trim upholstery in green velvet leather and warm neutrals small marble or dark wood table tops lighting mood warm late evening interior ambience speakeasy mood but still bright enough to read the space in isometric soft pools of light at tables and bar gentle shadows no harsh white lighting narrative negative instructions do not do not alter the plan layout wall locations door swings openings or room sizes do not add new rooms or corridors do not change the scale of the historic plan do not convert it into a residential layout do not use modern minimalist furniture or bright contemporary finishes avoid neon industrial loft styling or nightclub aesthetics avoid warped geometry duplicate furniture floating objects illegible text or perspective camera distortion keep true isometric axonometric do not obscure the right side bar and lounge with excessive decorative clutter use the same furniture as shows on the plan do not change the orientation of the floorplan