archsynth
Sign Up
Open main menu
Image to 3d model
Compare
Testimonials
Contact us
Log in
→
Signup
Archsynth generation
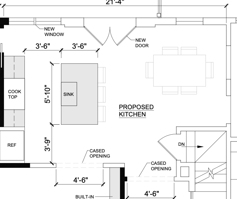
Input image
Copy Prompt
this is an architectural drawing of a floorplan note the locations of the sink in the island the appliances the dining table and french doors to the deck what would this look like as a classic boho style 3d render
Maintain Colors (v2)
strength 75
seed 10
Start Creating Renders Now
Related Posts
Start Creating Renders Now
View more