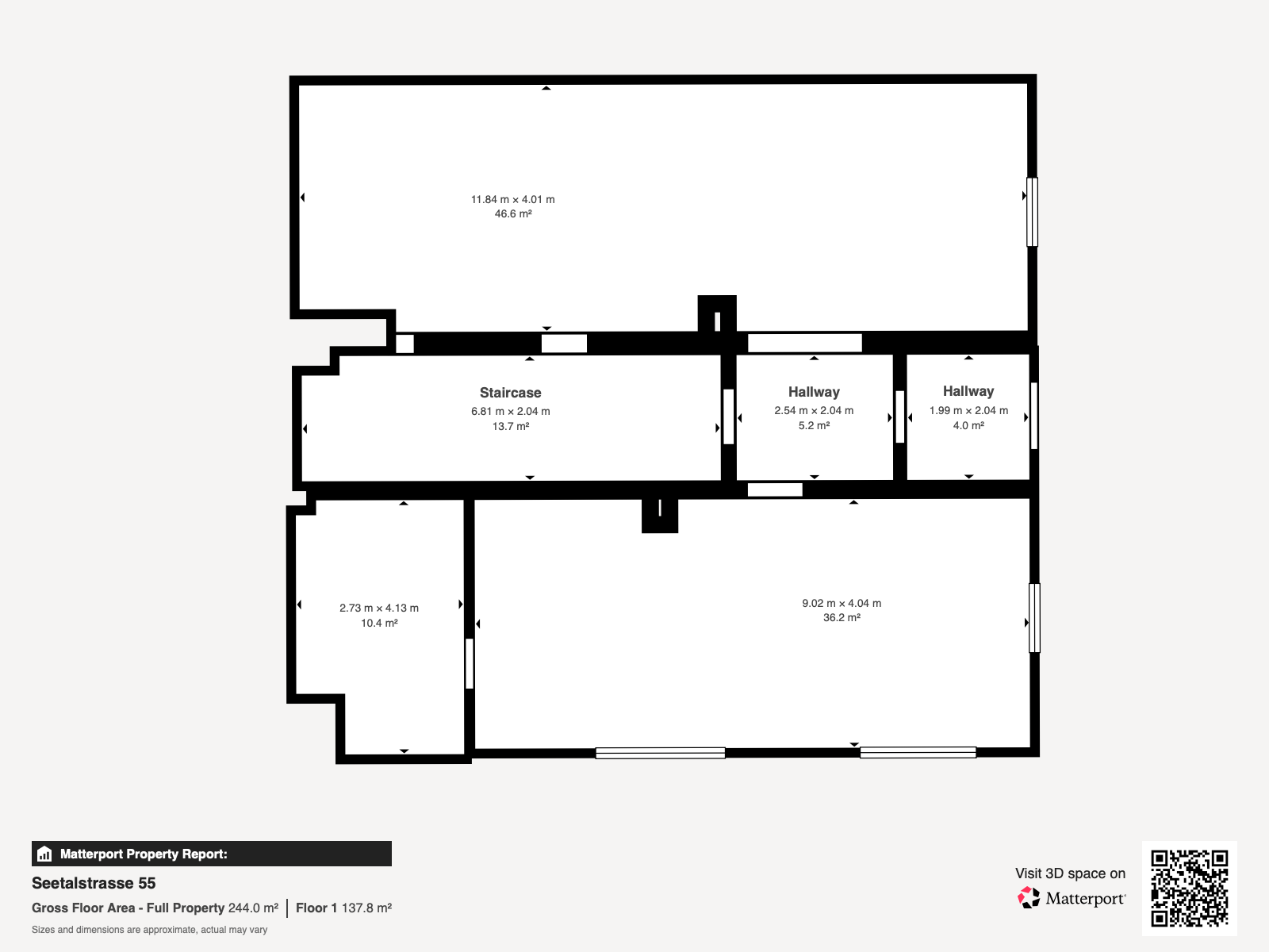
convert the uploaded floorplan into a simple architectural 3d massing model preserve the exact layout wall positions and proportions from the original floorplan generate vertical walls and a flat floor from the plan walls should extrude upward to approximately 2 4 2 5 m height maintain all room boundaries corridors and the staircase location exactly as shown in the floorplan create clean orthogonal geometry with straight walls and accurate room proportions model style simple sketchup style architectural model white walls light grey floor minimal materials no furniture clean edges clear door and window openings where visible geometry rules keep the original floorplan footprint exterior walls thicker than interior walls maintain stair opening remove matterport scan artifacts straighten irregular edges maintain right angles output clean architectural 3d model neutral materials suitable for sketchup architectural visualization