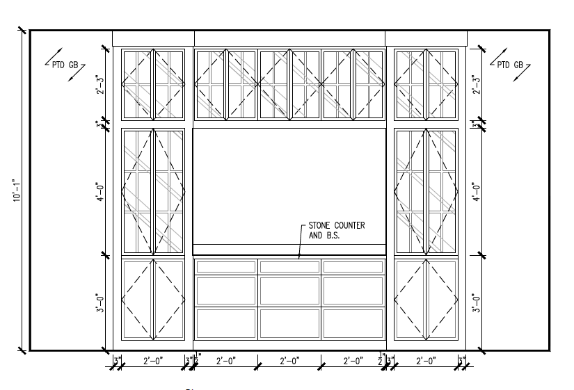
i d like to create a 3d rendering of the elevation this is a dining room i d like built ins to be a light blue color ceiling to be painted the same blue color the room will have wallpaper green background chinoisirie with birds and flowers crown moulding will match the blue of the built ins vertically fluted glass inside cabinet doors and doors drawers will have reeded detail there will be a large window with black mullions on the adjacent wall there will be approximately 4 to the right and left of cabinets with floor to ceiling wallpaper