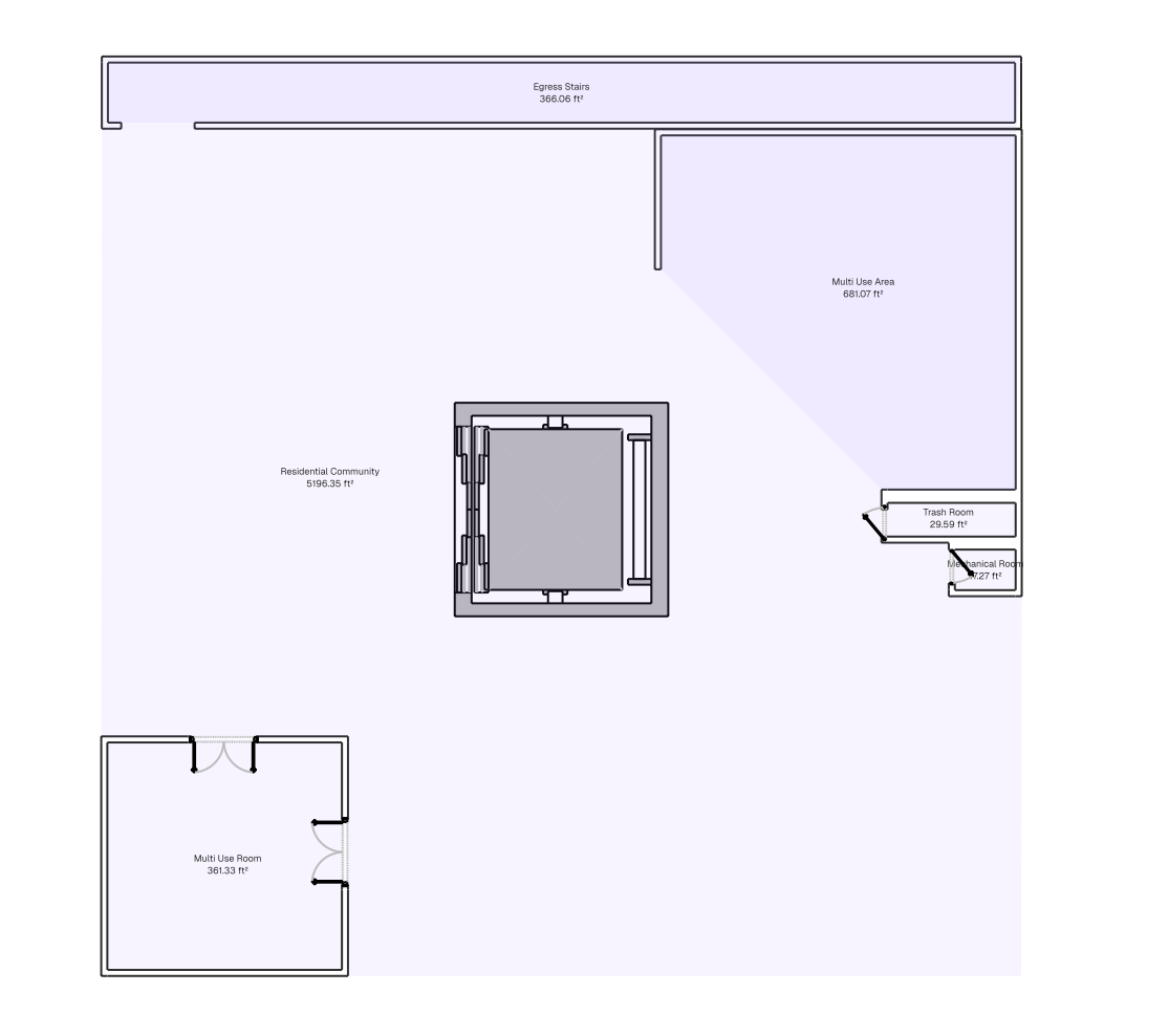
convert this floor plan into a realistic isometric 3d view of a full house show the space from an elevated angle with furniture walls and details visible furnish this as a community space for an apartment complex a elevator in the center of the room and a set of egress stairs on the far wall according to the room tags strictly stick to the room tags in the image furnish the multipurpose rooms with community type games and activities like a game room or craft area put mechanical things in the mechanical room trash in the trash room make the furniture cube in shape and have a color scheme of cmy add colored glass around the area in the same color scheme to reflect color around the space stick to white and cream materials for the walls and floors use the same furniture as shows on the plan do not change the orientation of the floorplan