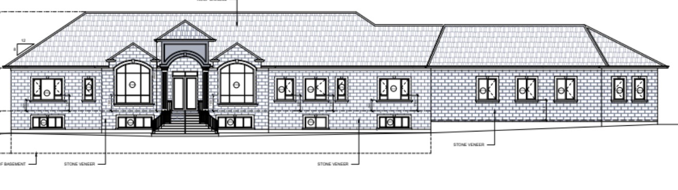
can you illustrate this drawing exactly to scale but with white stone and black roof and make the front entryway and two side peaks look a bit better aesthetically can you make the stone bigger white stones and the front facade above the entryway can you not put any shingles make it all stone