archsynth
Sign Up
Open main menu
Image to 3d model
Compare
Testimonials
Contact us
Log in
→
Signup
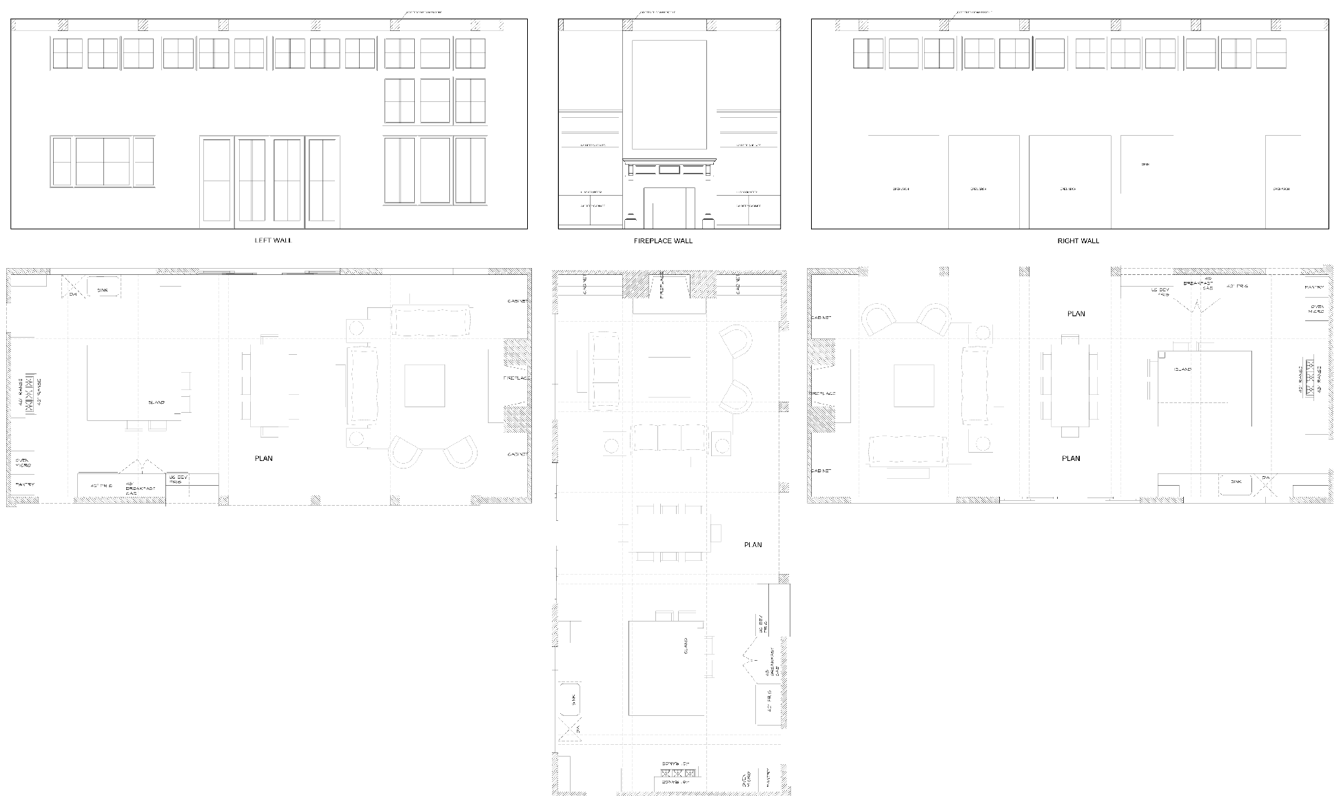
Archsynth generation
Input image
Copy Prompt
look at the center floor plan and the fireplace wall elevation create a life like perspective using the flanking plans and the corresponding left and right elevation to locate windows and details in the room make it life like and beautiful
Maintain Colors (v2)
strength 75
seed 10
Start Creating Renders Now
Related Posts
Start Creating Renders Now
View more