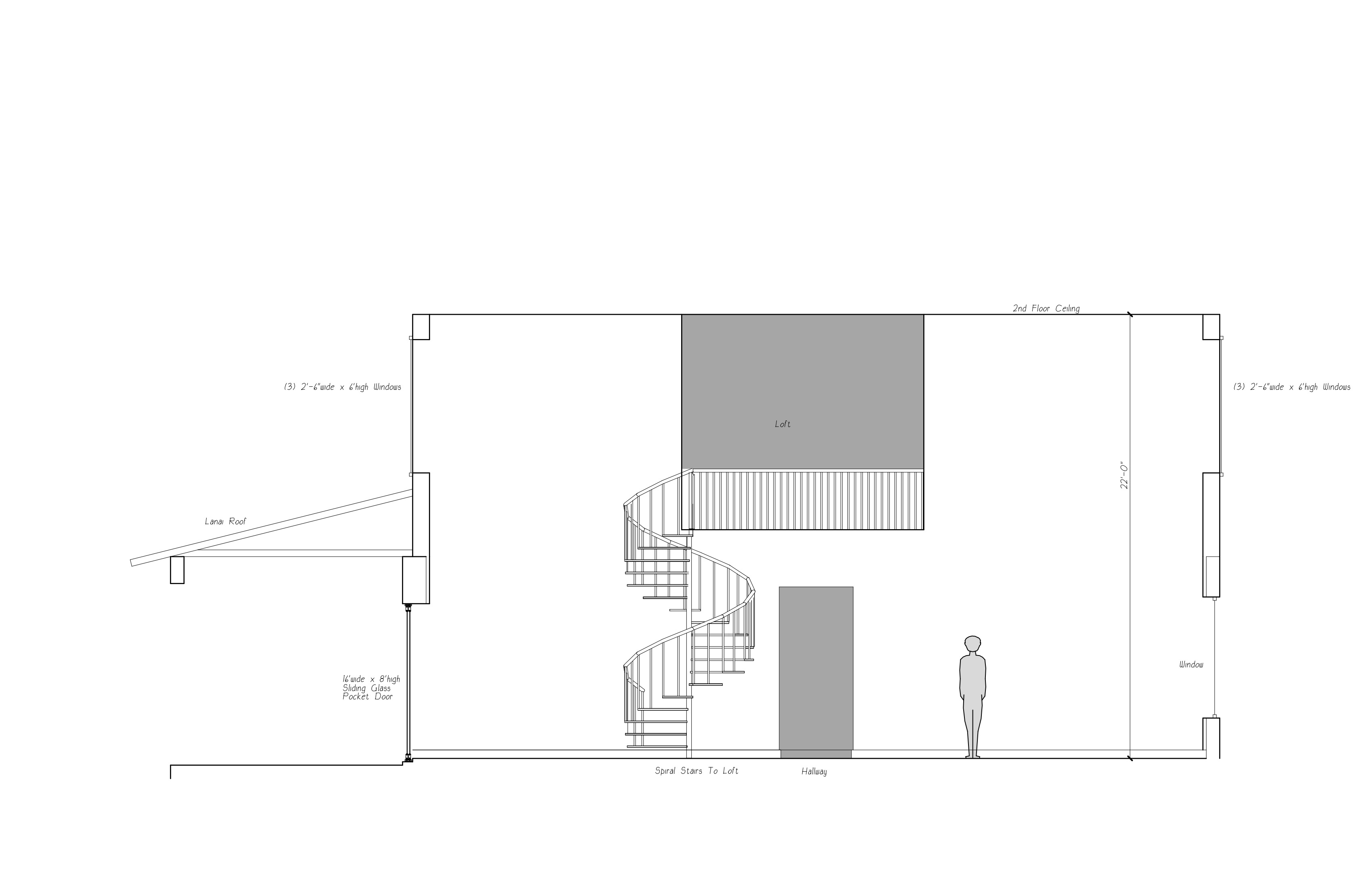
interior room wall elevation with 14 deep recessed loft 14 deep recessed hallway solid white walls each side of hallway solid white walls each side of loft flat ceiling above loft add 3 windows windows above 4 panel 16 wide sliding glass door no plants in corner add person standing beside hallway