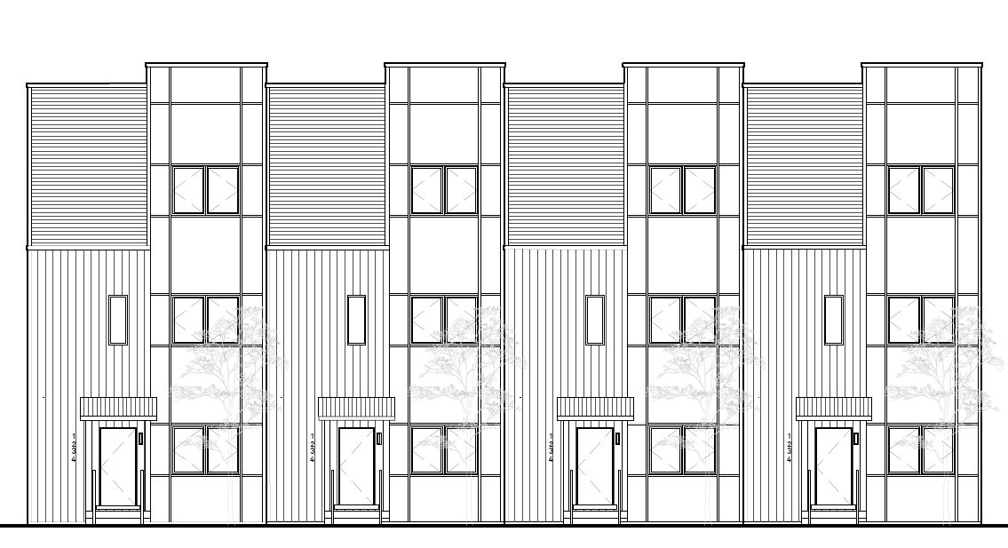
render this to show brick in the sections containing the front doors charcoal gray and white board batten cement board on the tall portions containing the three stacked windows and lapped charcoal and white cement board on the top sections between the board batten sections