archsynth
Sign Up
Open main menu
Image to 3d model
Compare
Testimonials
Contact us
Log in
→
Signup
Archsynth generation
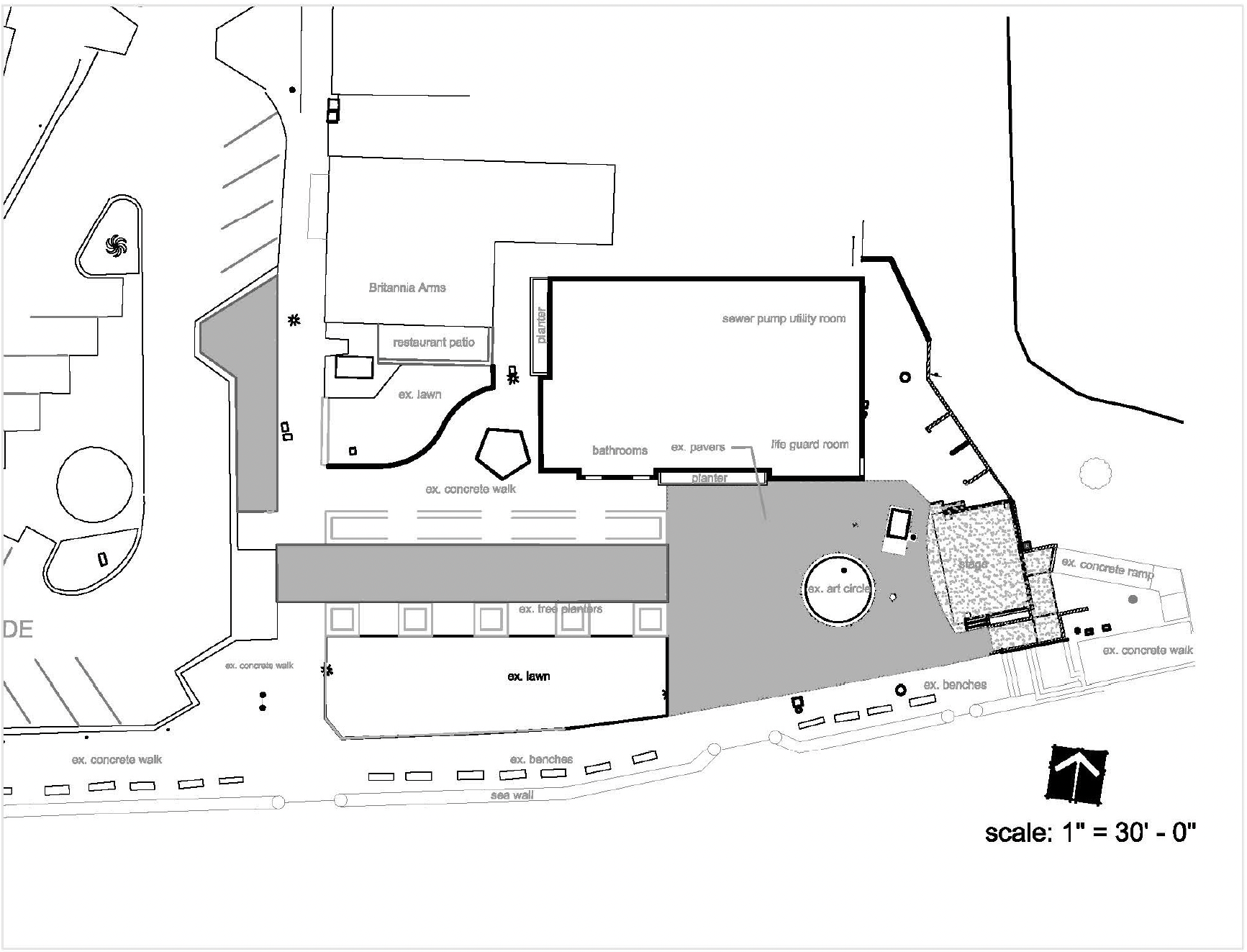
Input image
Copy Prompt
modernist aerial shot i would like to make the site map into a drawing that looks like its been hand drawn with black ink pen by a landscape architect please use the additional colored images as an example to go by architecture
by Style
strength 75
seed 4603
Start Creating Renders Now
Related Posts
Start Creating Renders Now
View more