archsynth
Sign Up
Open main menu
Image to 3d model
Compare
Testimonials
Contact us
Log in
→
Signup
Archsynth generation
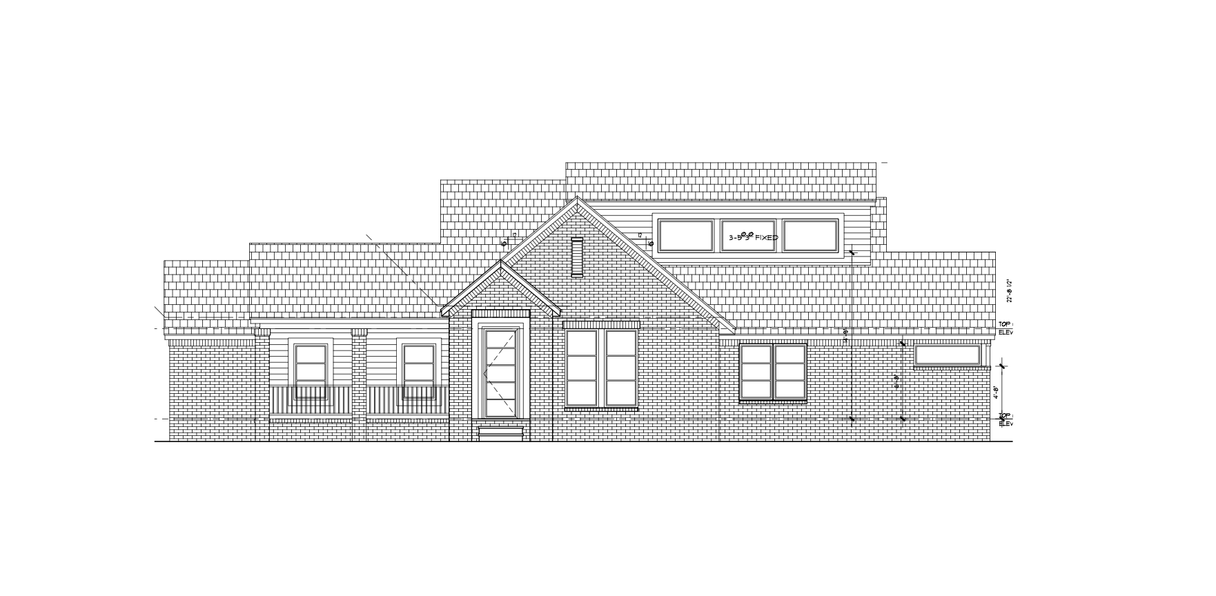
Input image
Copy Prompt
modern ranch style home shown from the front and right side front cladding is nearly all creamy colored brick with cedar tone lap siding on the dormer all windows are casements and the frames are black with no divided lites
Elevations
strength 100
seed 6844
Start Creating Renders Now
Related Posts
Start Creating Renders Now
View more