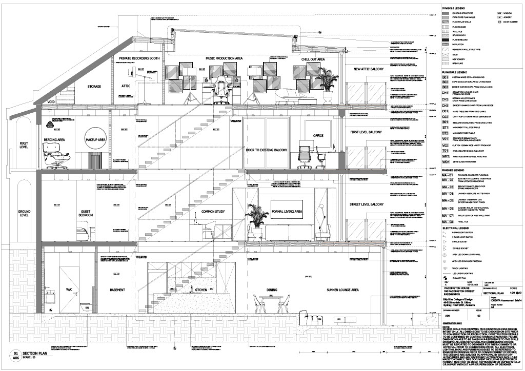
sectional cut through a heritage terrace house in paddington showing four levels basement ground floor first floor and attic illustrating a contemporary renovation within a restored brick fa ade that blends heritage character with modern minimalism featuring a central cantilevered tasmanian oak staircase framed in black aluminium and illuminated by a skylight that casts natural light through the vertical void connecting all levels the basement forms the social heart with polished concrete floors an open kitchen with marble island dining area and sunken lounge opening to a landscaped courtyard through floor to ceiling sliding glass doors the ground level includes a guest suite with ensuite an art lined hallway leading to a common study and formal living room that opens onto a restored balcony with wrought iron balustrade the first floor houses a master suite with walk in wardrobe and ensuite a private office opening to a new balcony and a reading nook and makeup area positioned along the stair landing beneath the light filled void the attic is transformed into a creative retreat with a music production area private recording booth chill out lounge exposed timber rafters and new attic balcony framed by greenery materials include tasmanian oak polished concrete white plaster and black aluminium detailing all unified by warm daylight cascading from the skylight creating dynamic light and shadow throughout the interior rendered in a highly detailed architectural sectional style with furniture plants subtle reflections and fine linework that express the vertical spatial flow and harmony between heritage and modern urban living