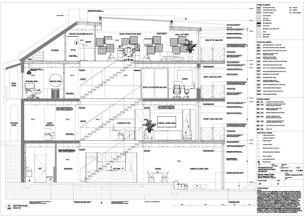
basement level with polished concrete floor minimalist open kitchen with marble island bench dining area with pendant lighting sunken lounge facing landscaped courtyard full height glass sliding doors opening to garden indoor outdoor connection subtle reflections on glass and polished floor