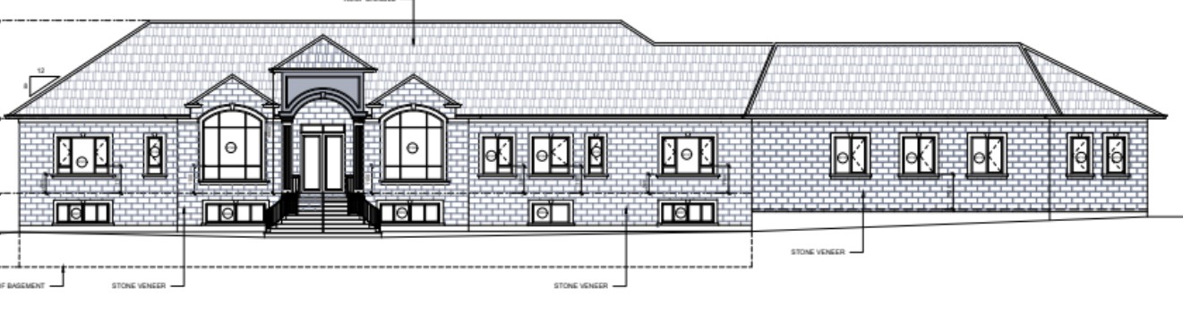
can you illustrate this drawing exactly to scale but with white stone and black roof and make the front entryway and two side peaks look a bit better aestheticalky also make the front face of the roof peak above the front doors white stone no shingles