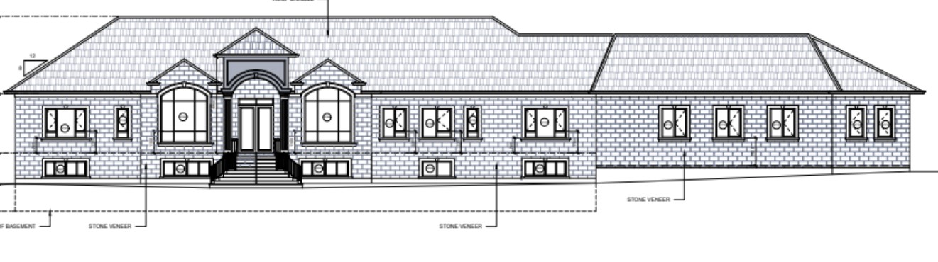
can you illustrate this drawing exactly to scale but with white stone and black roof and make the front entryway and two side peaks look a bit better aestheticalky also make the front face of the roof peak above the front doors white stone no shingles can you remove the dark parts around the entrance doorway area just white stone and make it look more modern